Work
Contact
IMDB
Work
Contact
IMDB
jason knox-johnston. Art Direction/production design-film/tv/commercials

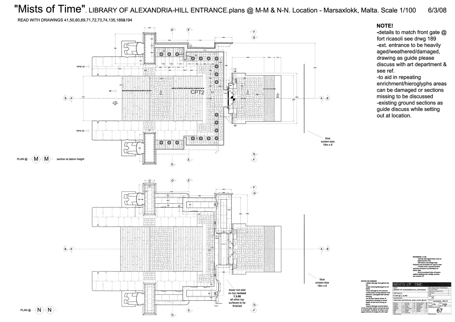
Agora-Art Director

Supervisng Art Director-Frank Walsh. Production Designer-Guy Dyas

trailer

You may also like

Museum Concepts
2020
The Flash-Supervising Art Director
2021
Around the World in 80 days-Assistant Art Director
2004
Commercials Concepts
2020
Hitchhikers Guide to the Galaxy-Assistant Art Director
2005
The Martian-Art Director
2015
Jurassic World-Fallen Kingdom-Supervising Art Director
2017
Star Wars-The Last Jedi-Art Director
2017
Outlaw King-Supervising Art Director
2018
In Development-Production Design
2021
↑Back to Top
Powered by Adobe Portfolio