Work
Contact
IMDB
Work
Contact
IMDB
jason knox-johnston. Art Direction/production design-film/tv/commercials

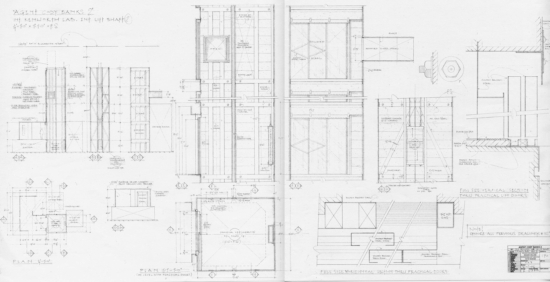
Agent Cody Banks 2-Art Director

Art Director. Supervising Art Director-Peter Wenham. Production Designer-Richard Holland

trailer

You may also like

The Flash-Supervising Art Director
2021
The Bourne Ultimatum-Art Director
2007
Drawings
2021
Allied-Supervising Art Director
2016
Outlaw King-Supervising Art Director
2018
Avengers-Age of Ultron-Digital Set Designer
2015
The Chronicles of Narnia-Prince Caspian-Art Director
2008
Mickey 17-Supervising Art Director
2022
Knuckles-Co Production Designer. Episodes 2-6
2023
Jurassic World-Fallen Kingdom-Supervising Art Director
2017
↑Back to Top
Powered by Adobe Portfolio